Menu

Boarding House Willhoop Hamburg-Airport

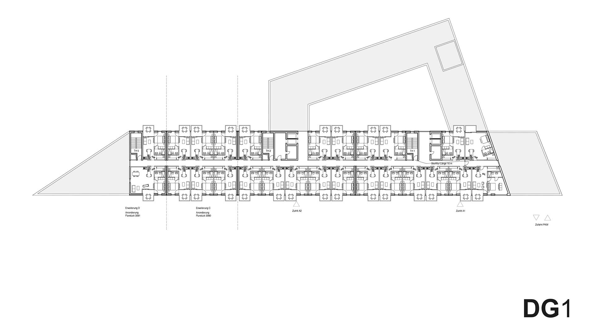
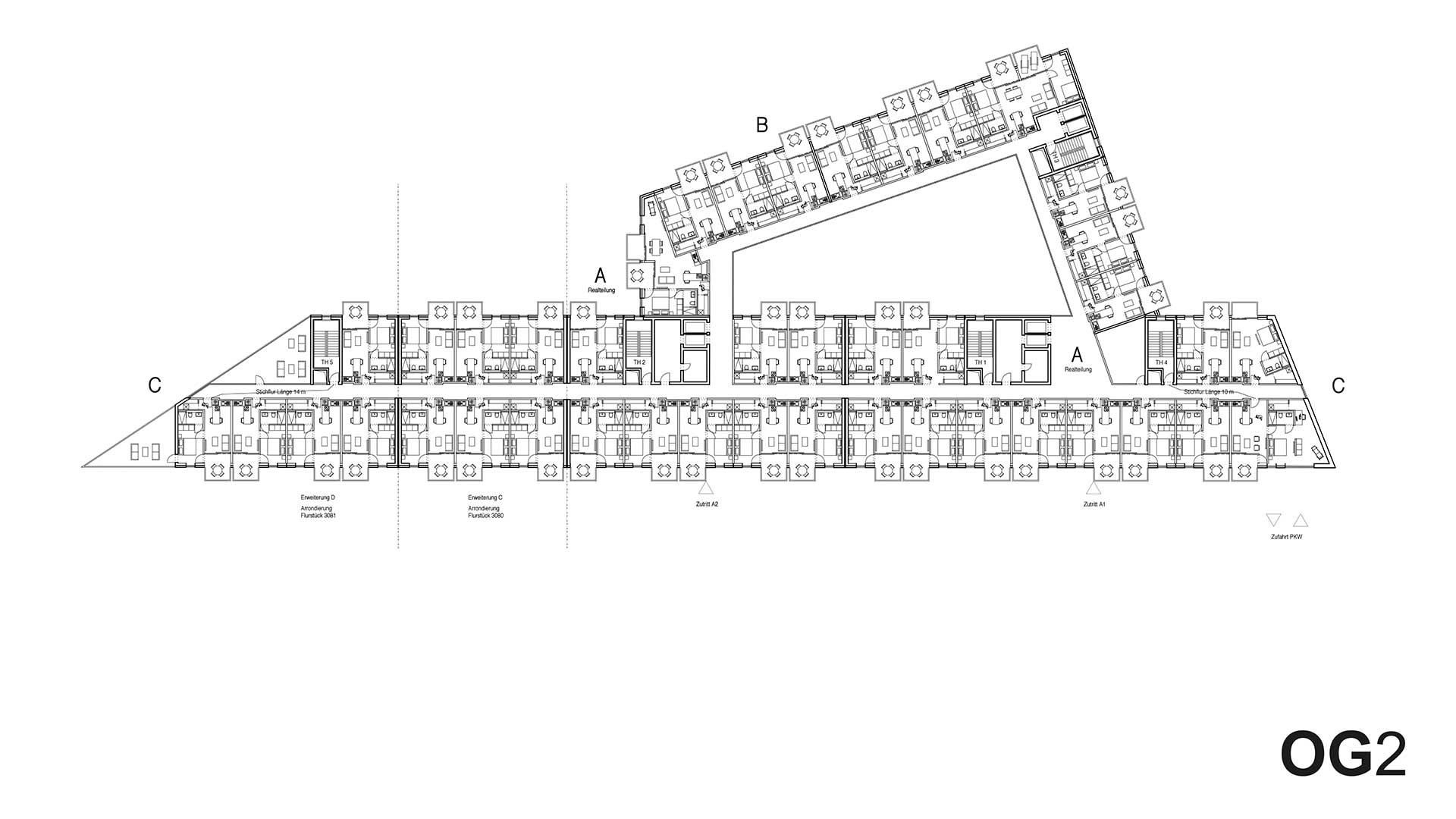
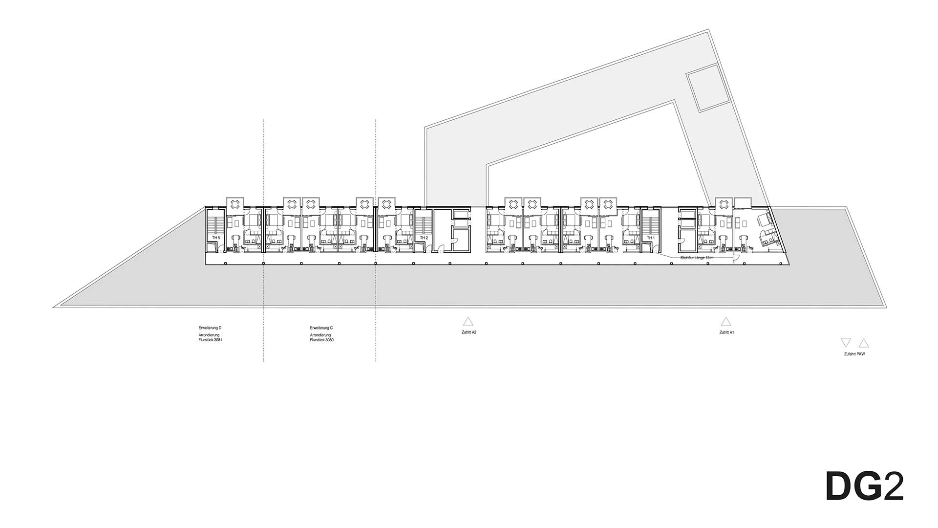
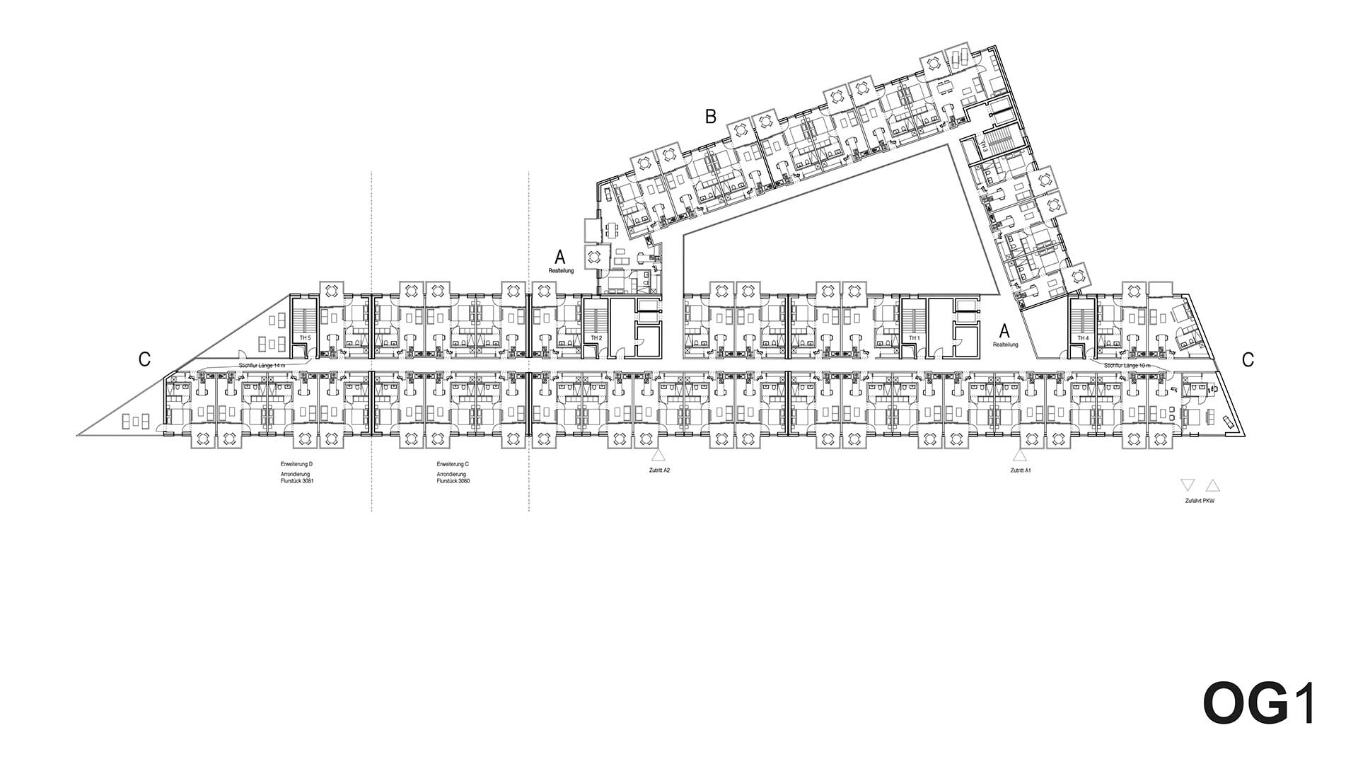
Boarding House mit 160 Mikro-Apartments in der Nähe des Hamburg Airport mit rund 7.000 qm BGF o.i. und 90 Stellplätzen. Vorgesehen sind Long Stay Apartments für die monatliche Anmietung.
Derzeit laufendes Bebauungsplanverfahren.

In Zusammenarbeit mit GATE Architecture & Planning mbH

Kennwerte

Erstellungsdatum: 2023

Größe: 7.000 qm BGF

Status: Laufendes Bebauungsplanverfahren

Auftraggeber: Geheim

Adresse

Boarding House mit 160 Mikro-Apartments in der Nähe des Hamburg Airport